About Us

"Building Homes, Growing Futures."

🌿 A Design Concept That Pleases Every Dimension

We apply the Modern Tropical Minimal Style to our designs, aiming to create homes that feel luxurious, airy, and harmoniously blend with nature — allowing you to feel relaxed, free, and alive in every aspect of life.

✅ Quality Is Our Heart

Every construction material is carefully selected for its durability, longevity, and aesthetic appeal.
We offer complete services, from design to delivery, all handled by skilled professionals you can trust.

📍 Superior Location for Easier Living

Our projects are located in prime areas of Phuket — close to key facilities for ultimate convenience.
Whether it’s international schools, airports, beaches, or shopping centers, all are within easy reach in peaceful, suitable surroundings for long-term living.

LINE_20250803_021340

Villa 1 – Plot P1

รูปภาพ(12)

Villa 2 – Plot P2

รูปภาพ(15)

Villa 3 – Plot P3

รูปภาพ(16)

Villa 4 – Plot P4

🏡 Wanita Pool Villa – Master Plan & Floor Plan Summary

Master Plan

  • The project consists of 4 villas in total.
  • Each villa features a private swimming pool and covered car parking.

  • Internal road layout is designed for easy access and privacy.

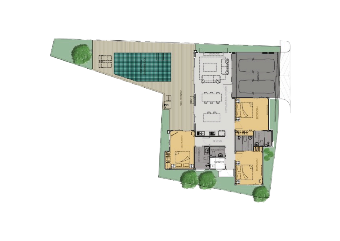
Wanita Pool Villa – Floor Plan (3 Bedrooms, 4 Bathrooms)

The total built-up area is 228.12 Sq.m., thoughtfully divided into functional spaces:

  • Carpark: 30.00 Sq.m.

  • Living, Dining, and Kitchen area: 46.50 Sq.m.

  • Bedroom 1: 19.50 Sq.m.

  • Bedroom 2: 14.00 Sq.m.

  • Bedroom 3: 13.50 Sq.m.

  • Bathroom 1: 3.87 Sq.m.

  • Bathroom 2: 3.87 Sq.m.

  • Bathroom 3: 4.36 Sq.m.

  • Bathroom 4: 2.60 Sq.m.

  • Laundry room: 2.46 Sq.m.

  • Pool Terrace: 50.00 Sq.m.

  • Swimming Pool: 24.00 Sq.m.

This layout offers a well-balanced living environment, with spacious common areas, private en-suite bathrooms for all bedrooms, and a large pool terrace designed for relaxation and outdoor enjoyment.